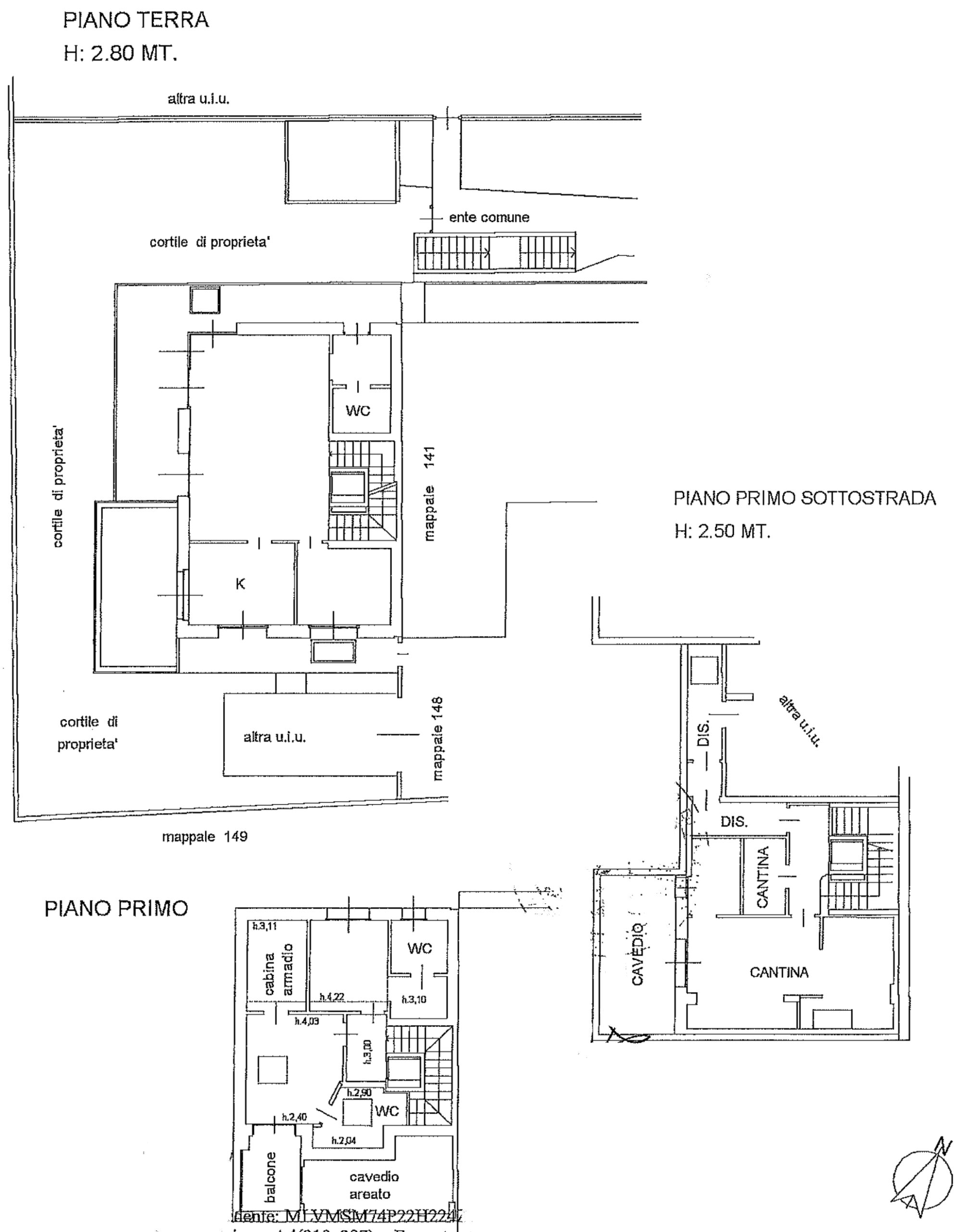
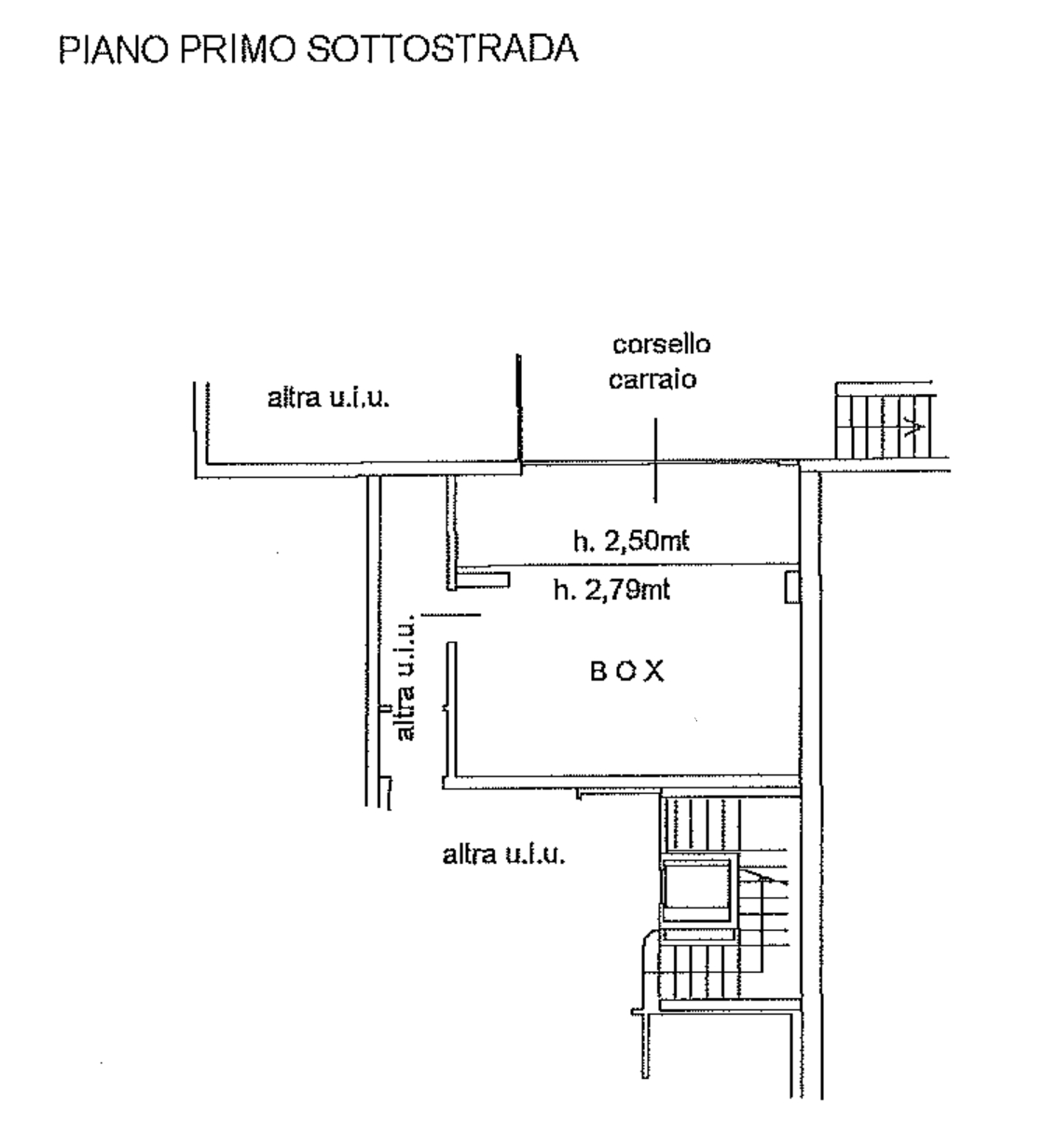
Vedano al Lambro, via C. Battisti 25.
Vedano al Lambro, via Battisti 25: ubicato al confine tra…
Euro €345.000
Venduto
Trattativa riservata































Situata in una delle zone più ricercate di Monza, in via Ponchielli 49, questa villa di testa di nuova costruzione è un manifesto di design e sostenibilità. Progettata per chi esige il massimo, la proprietà viene consegnata “pronta da abitare”, con interni curati nei minimi dettagli e arredi fissi dei più prestigiosi brand internazionali già inclusi nella proposta.
La zona giorno è inondata di luce, grazie alle imponenti vetrate Schüco a triplo vetro che abbattono i confini tra interno ed esterno, conducendo al giardino privato che abbraccia la casa su tre lati.
La cucina separata è un capolavoro di funzionalità firmato Poliform, equipaggiata con il top della gamma elettrodomestici Miele. Il piano ospita anche un’accogliente camera doppia e un bagno di servizio completo, ideale per gli ospiti.
La camera padronale si trova invece al primo piano, ed è un rifugio di lusso con balcone privato, cabina armadio attrezzata divisa da eleganti porte Lualdi in vetro speciale e bagno en-suite con doccia “private spa”, dotata di cromoterapia, nebulizzatore e cascata per un relax totale.
La seconda suite è anch’essa dotata di bagno e cabina armadio a vista, perfetta per garantire privacy e comfort assoluto.
un ascensore privato Schindler a bassa manutenzione.
Al piano interrato si trova invece una taverna molto spaziosa e luminosa, con armadiature di design, cantina vini, ripostiglio e una sala da bagno/lavanderia con vasca Jacuzzi. L’ambiente è collegato direttamente con l’autorimessa doppia, disponibile al prezzo di 65.000 euro. Nello stabile è possibile acquistare anche una seconda autorimessa ampia al prezzo di 60.000 euro.
I tre livelli sono collegati da una scala scultorea in marmo Ebano con segnapasso a LED e da un ascensore privato Schindler a bassa manutenzione.
Di classe energetica A4, con impianto fotovoltaico privato sulla copertura in fase di installazione, l’abitazione è dotata di sistema Bticino con controllo remoto, Velux touchpad e ventilazione meccanica controllata (VMC) per una qualità dell’aria sempre ottimale.
Il giardino privato, dotato di irrigazione automatica e illuminazione scenografica, offre un ingresso principale dal vialetto condominiale e un secondo accesso indipendente con posto auto.
La posizione strategica rispetto alle future fermate della metropolitana la rende anche un investimento patrimoniale sicuro nel tempo.
Vedano al Lambro, via Battisti 25: ubicato al confine tra…
Euro €345.000
Monza via Gerardo dei Tintori, alla residenza “ Il Mulino…
Euro €850.000 MESE
Zona Parco – Appartamento in Via Sant’Andrea 6 – Monza